


气动切断阀

一、产品概述
气动切断阀采用顶导向结构,配用多弹簧执行机构。具有结构紧凑、重量轻、动作灵敏、流体通道呈S流线型、压降损失小、阀容量大、拆装方便等优点。切断阀接受来自调节仪表的信号,切断、开启或改变介质流向,达到对压力、流量、温度或液位等工艺参数自动控制。广泛应用于石油、化工、冶金、电力、轻工、纺织等各种工业部门的生产过程自动控制和远程控制系统中。本系列产品有薄膜式、活塞式两种。阀体结构有单座、套筒、双座(二位三通)三种,密封形式有填料密封和波纹管密封两种,产品公称压力等级有PN10、16、40、64四种,公称口径范围DN20~200mm。适用流体温度由-60~450℃。泄漏量等级为IV级或Ⅵ级。流量特性为快开。
二、产品特点
1、切断阀采用多弹簧执行机构与调节机构用三根立柱相连,整个高度可减小约30%,重量可减轻约30%。
2、阀体按流体力学原理设计成等截面低流阻流道,额定流量系数增大30%。
3、阀内件密封部分有严密型和软密封两种,严密型为堆焊硬质合金,软密封型为软质材料制作,关闭时密封性能优良。
4、平衡型阀内件,提高了切断阀的许用压差。
5、波纹管密封型对移动的阀杆形成完全的密封,堵绝了介质外漏的可能性。
6、活塞式执行机构,操作力大,使用压差大。
三、连接尺寸及标准
|
法兰标准 |
GB4216-84、GB9113-88、JB/T79-94 |
|
法兰密封面型式 |
PN10、PN16为凸面;PN40、PN64为凹凸面、阀体为凹面 |
|
结构长度 |
GB12221-89 |
|
执行机构气信号接口 |
内螺纹M10X1 |
|
标准制造 |
ANSI、JIS、DIN等标准 |
四、零件材质
|
阀体、密封套筒 |
HT200、ZG230-450ZG1Cr18Ni9TiZGOCr18Ni12M02Ti |
|
阀芯、阀座 |
1Cr18Ni9TiOCr18Ni12M02Ti1Cr18Ni9Ti堆焊司太莱合金 |
|
套筒、阀塞 |
1Cr18Ni9TiOCr18Ni12M02Ti1Cr18Ni9Ti堆焊司太莱合金 |
|
填料 |
聚四氟乙烯、柔性石墨 |
|
波纹膜片 |
丁腈橡胶夹增强涤纶织物 |
|
弹簧 |
60Si2Mn |
|
阀杆、推杆 |
2Cr13、1Cr18Ni9Ti |
|
阀芯、阀塞(软质件) |
增强聚四氟乙烯 |
|
波纹管 |
1Cr18Ni9Ti |
五、主要技术参数
|
规格通经 |
DN10-DN300 |
|
公称压力 |
PN1.6Mpa-PN6.4Mpa |
|
阀体形式 |
二通式、三通式 |
|
阀体材质 |
碳钢、不锈钢、316等 |
|
材质材质 |
304、316、316L |
|
密封材质 |
丁晴橡胶、聚四氟乙烯、硬质合金 |
|
连接方式 |
螺纹、法兰、焊接 |
|
控制方式 |
气开/气关 |
|
附件选择 |
电磁阀、空气过滤器减压阀等 |
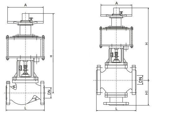
六、主要外形及尺寸

| 公称通径 | 15 | 20 | 25 | 32 | 40 | 50 | 65 | 80 | 100 | 125 | 150 | ||
| A | ф 196 | ф 232 | ф 308 | ф 394 | |||||||||
| L | PN16 、 40 | 130 | 150 | 160 | 180 | 200 | 230 | 290 | 310 | 350 | 400 | 480 | |
| PN64 | 210 | 230 | 230 | 260 | 260 | 300 | 340 | 380 | 430 | 500 | 550 | ||
| H | PN16 、 40 | 305 | 340 | 345 | 370 | 380 | 390 | 475 | 490 | 500 | 765 | 825 | |
| PN64 | 320 | 350 | 354 | 372 | 382 | 397 | 473 | 475 | 517 | 805 | 882 | ||
| 波纹管型 | 375 | 409 | 414 | 431 | 441 | 468 | 555 | 570 | 613 | 855 | 915 | ||
| H 1 | PN16、40 | 50 | 53 | 58 | 70 | 75 | 83 | 93 | 100 | 110 | 125 | 143 | |
| PN64 | 60 | 65 | 70 | 78 | 85 | 90 | 100 | 85 | 125 | 148 | 170 | ||
| H 2 | PN16 | 115 | 115 | 121 | 130 | 140 | 153 | 178 | 190 | 200 | 260 | 320 | |
| PN40 | 125 | 125 | 130 | 140 | 150 | 160 | 185 | 200 | 220 | 280 | 320 | ||
| PN64 | 150 | 150 | 160 | 170 | 180 | 200 | 230 | 250 | 282 | 310 | 430 | ||
| H 3 | PN16、40 | 404 | 415 | 428 | 448 | 468 | 561 | 578 | 590 | 886 | 1008 | 1120 | |
| PN64 | 365 | 430 | 498 | 528 | 528 | 530 | 535 | 540 | 600 | 890 | 1208 | ||
| 波纹管型 | 395 | 465 | 478 | 509 | 509 | 548 | 641 | 658 | 670 | 976 | 1098 | ||

|
通径(DN) |
15 |
20 |
25 |
32 |
40 |
50 |
65 |
80 |
100 |
125 |
150 |
200 |
|
|
L |
PN16/40 |
130 |
150 |
160 |
180 |
200 |
230 |
290 |
310 |
350 |
400 |
480 |
600 |
|
PN64 |
210 |
230 |
230 |
260 |
260 |
300 |
340 |
380 |
430 |
500 |
550 |
650 |
|
|
A |
210 |
270 |
320 |
||||||||||
|
H1 |
115 |
115 |
125 |
130 |
145 |
158 |
170 |
230 |
240 |
260 |
315 |
360 |
|
|
H |
440 |
440 |
440 |
155 |
180 |
490 |
550 |
580 |
605 |
735 |
770 |
830 |
|
不断提升服务质量,精益求精,“真诚的服务”是山东泰普阀门有限公司永恒的主题。山东泰普阀门有限公司严格按照 ISO9001-2000 质量体系认证要求,质量严格把关,责任到人,确保生产、销售、服务的健康运行。加强与用户沟通,竭诚为广大客户提供优质产品,至善至美服务,特此我厂做出如下承诺:
产品严格按照中国 GB、HG 标准和美国 API 等标准设计、制造、验收。密封面硬度达到国家规定要求,宽度超过国家标准。
产品介绍,技术交流,非标产品设计,疑难解答。
守信合同,保证及时供货,随时保持与客户联系。
对特殊或复杂的产品,我厂安排技术人员对用户进行产品使用、故障排除、调式及维修进行培训和指导。
山东泰普阀门有限公司产品质保期为自出厂起 12 个月,实行“三包”服务(包退、包换、包修)。
产品在使用中我厂定期组织技术、检查人员进行访问,征询用户对产品质量、使用状况、改进意见等方面的反馈,以便进一步提高产品质量。
对用户投诉产品质量问题,快速做出反映,售后服务人员在 24-36 小时(省外 48 小时)赶赴现场。
对售后服务,要求用户填写服务后的质量反馈表,并做出鉴定意见,一边提高山东泰普阀门有限公司的服务质量。
客户采购清单请传真至 0531-69926510,或来电咨询 0531-69926510}。
收到客户采购清单,为客户提供阀门型号选型与报价(价格清单)。
具体商定:交货期、特殊要求等事宜。
客户对产品有特殊要求,须在订货合同中提供以下说明:
结构长度
连接形式
公称直径、全通径、缩径、管道尺寸
运用介质及温度、压力范围
实验、检验标准及其他要求
本场可根据客户特殊要求配置各类驱动装置。
如由客户提供确定的阀门类型和型号时,客户应正确说明其型号的含义和要求,在供需双方理解一致的条件下签订合同。